6 - Holiday Builders
Majestic
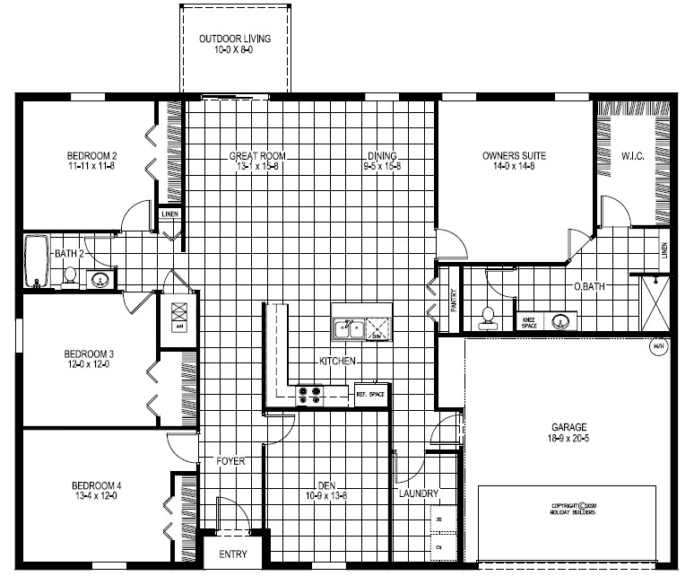
Quartz countertops, hardware on cabinets, tile throughout and carpet in the bedrooms. Den/office next to the entry way. Larger bedrooms. Split floor plan with open concept kitchen.

Model Address: | 13524 Spring Hill Drive Spring Hill, FL 34609 |
| Bedrooms: | 4.0 |
| Bathrooms: | 2.0 |
| Living Sq Ft: | 2134.0 |
| Phone: | 352-549-9701 |
| Contact Us: | Email |
Website: | |
| License #: | CGC1517576 |