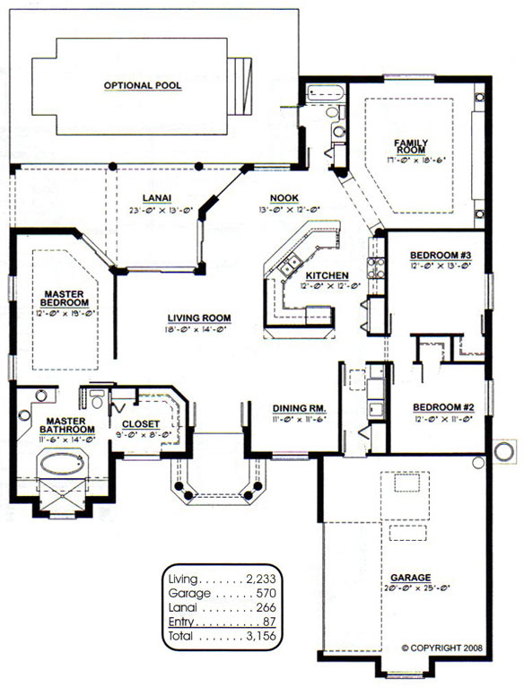
This home showcases our award winning master suite! This open floor plan is perfect for Florida's lifestyle!


Model Address: | 12377 Spring Hill Drive Spring Hill, FL 34609 |
| Bedrooms: | 3 |
| Bathrooms: | 2 |
| Living Sq Ft: | 2233 |
| Phone: | 352-686-1959 |
| Contact Us: | |
Website: | |
| License #: | CBC060063 |